駒込台ハイツ K202

6,980万円

東京都文京区本駒込5丁目71-8

山手線「駒込」駅徒歩5分

価格
6,980万円
間取り
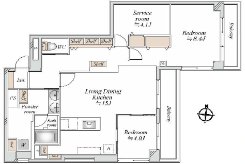
2SLDK
向き
所在地
東京都文京区本駒込5丁目71-8
交通

山手線駒込」駅 徒歩5分

専有面積
74.29㎡
築年月
1973年9月(築52年)

オープンルーム

日時 2025年11月17日 ~  10:00 ~ 19:00
  • ※事前に必ずお問い合わせください
  • □■□■□■□■□■□■□■□■□
    毎週末オープンルーム開催中!
    (平日・時間外のご案内も可能)
    □■□■□■□■□■□■□■□■□

    ※1日で複数の物件のご見学も可能です。
    ご予約時に「こんな物件ないですか?」など
    リクエストを頂ければ、併せて物件資料を
    お持ちいたします。
    「未公開物件」「新着物件」などもご紹介可能です。

    ◇◆ご見学予約にあたり◆◇ (お待ち合わせなど)
    (1)ご来店  (2)ご自宅まで迎車
    (3)ご希望場所にてお待合わせ
    その他ご要望などあれば、何でもお気軽にご相談ください。

    ◇◆住宅ローンのご相談◆◇
    「住宅ローン」・「資金計画」はお客様にとって一番重要な部分です。
    不動産会社によって申し込む銀行の優遇幅が違います。
    当社は多数の銀行様にて優遇幅の大きい提携金利で
    申し込むことが可能です。
    「以前住宅ローンを断られた」・「既に他のローンを借りている」
    などお悩みの方もまずはお気軽にご相談ください。

    □■お住み替えキャンペーンも同時開催中■□

    ~ご自宅を売却し購入をお考えのお客様~
    弊社直接買取や仲介でのご売却などお客様に合ったご提案をさせていただきます。

    物件買取サービス(買換え時売却サービス)
    お住替えによるお住まいの売却時や至急お持ちの不動産を現金化されたい場合に、
    弊社が買主となり直接お住まいを買い取るサービスです。

    ☆相続・資産売却も可☆
    □その他注意事項□
    物件の状態によっては、買い取りできない場合もございますので予めご了承ください。

    ご見学・物件資料のご請求はお気軽にご連絡ください。
    ↓ ↓ ↓
    ※メールの場合は【資料請求】ボタンをクリックしてください。
    ※お電話の場合はTEL:03-6457-1157

物件の特徴

  • バストイレ別

  • カウンターキッチン

  • 独立洗面台

  • エレベーター

セールスポイント

◇◆内装新規フルリノベーションマンション◆◇
文京アドレス×複数路線利用可能な駒込駅徒歩5分。
74㎡のゆとりと充実設備が魅力のファミリー向け2SLDK。
□当日の内覧もご対応致します!□弊社提携ローンご提案可能です。

担当者のコメント

梶山 晃陽

文京区本駒込アドレス、山手線・南北線「駒込」駅徒歩5分の便利な立地に佇む小規模レジデンス「駒込台ハイツ」。
周辺は戸建てや低層マンションが並ぶ落ち着いた住宅街で、駅近ながら静かで穏やかな雰囲気が広がっています。スーパーやドラッグストア、商店街も徒歩圏内に揃い、日々のお買い物から外食まで、子育て世帯にも暮らしやすい環境です。
お部屋は2階部分・専有面積74.29㎡のゆとりある2SLDK。約15帖のLDKは家族が自然と集まる広さがあり、キッチンはリビングの様子を見渡せる対面式で、配膳や家事動線もスムーズです。
8.4帖の主寝室はダブルベッド+収納もしっかり確保できるサイズ感で、4帖台の洋室はお子様部屋にちょうど良い広さ。サービスルームはワークスペースや趣味の部屋、収納力の高いファミリークローゼットなど、多目的に活用できます。
室内は新規フルリフォームが完了しており、キッチン・浴室・洗面化粧台・トイレといった水回り設備の新規交換はもちろん、フローリングやクロス、建具も一新。落ち着いた木目と優しいトーンの内装でまとめられており、小さなお子様がいても過ごしやすい、温かみのある住空間に仕上がっています。
総戸数9戸の小規模マンションならではのアットホームな雰囲気に加え、2025年には大規模修繕工事もされており、今後の建物コンディションにも安心感の持てる一邸です。
この機会に是非一度ご来場いただけますと幸いです。

基本情報

管理費
24,887円
修繕積立金
3,454円
修繕積立基金
-
間取り / 詳細
2SLDK
向き
専有面積
74.29㎡
バルコニー面積
-
その他面積
-
-
-
所在階 / 階建て
2階 / 7階建
建物構造
鉄筋コンクリート
築年月
1973年9月(築52年)
種別
中古マンション
土地権利
所有権
土地
(敷金 / 保証金)
- / -
国土法届出要否
不要
接道状況
-
用途地域
第一種住居
地勢
-
都市計画
-
現況
空家
引渡し
即時
取引態様
仲介
棟総戸数
-
管理形態
自主管理
管理会社 /
管理組合有無
- / -
その他条件
ゴミ当番協力金月:1,500円
取引条件の
有効期限
2025年12月18日

設備条件

設備条件
  • 閑静な住宅地 / リフォーム済 / リノベーション済 / オープンルーム / フローリング / バルコニー / 都市ガス / 公営水道 / 公共下水 / エレベーター / 2面バルコニー / 駐輪場 / ガスコンロ / コンロ2口以上 / 食器洗い乾燥機 / システムキッチン / カウンターキッチン / コンロ3口 / バス・トイレ別 / 洗面台 / 独立洗面台 / 食品庫 / 住戸内覧可能 / 角部屋
設備(その他)
    -

その他

物件番号
99112520
管理コード
-
建築確認番号
-
情報更新日
2025年12月04日
次回更新予定日
2025年12月18日
取扱会社
  • リアライズホーム株式会社
  • 東京都中央区日本橋久松町9番8号 Biz Feel 東日本橋 6階
  • TEL:0120-825-928
  • 東京都知事 (1) 第106857号
備考
▼▽物件おすすめポイント▽▼
・山手線・南北線「駒込」駅徒歩5分のファミリーに嬉しい利便性
・74㎡超のゆとりある2SLDK、全居室4帖以上で使いやすい間取り
・新規フルリフォーム完了済で、すぐに新生活をスタート
・2025年に大規模修繕工事実施済みで、将来の資産価値にも安心
・RC造×総戸数9戸のプライベートが守られる落ち着いた住環境
・小中学校やスーパーが徒歩圏に揃い、子育てにも最適

周辺施設

  • 文京区立昭和小学校の画像

    小学校

    文京区立昭和小学校

    407m(6分)

  • ピーコックの画像

    スーパー

    ピーコック

    658m(9分)

  • 文京区立第九中学校の画像

    中学校

    文京区立第九中学校

    661m(9分)

支払いシミュレーション

月々の支払額
9.6
購入希望物件価格
万円
頭金
万円
金利
%
返済額(ボーナス1回分)
万円
返済期間

※ボーナスは自動で年2回分で計算されます。

近隣の物件

  1. ランドステージ文京千石

    文京区千石2丁目

    2LDK (58.36㎡)

    1490万円

  2. グランドメゾン白山

    文京区白山4丁目

    2LDK (54.20㎡)

    6,998万円

  3. 湯島ハイタウンA棟

    文京区湯島4丁目

    3LDK (77.54㎡)

    7,399万円

  4. パレロワイヤル本駒込・曙町

    文京区本駒込1丁目

    2LDK (93.73㎡)

    11,800万円

駒込台ハイツ

駒込台ハイツ

6,980万円

24,887円

2SLDK(74.29㎡)

お気軽にお問い合わせください

LINEからお問い合わせ 無料お問い合わせ

リアライズホーム株式会社

0120-825-928

10:00~19:00

(休:火曜日・水曜日)