レジデンシア春日安藤坂 404

19,990万円

東京都文京区春日2丁目3-1

都営大江戸線「飯田橋」駅徒歩9分

丸ノ内線「後楽園」駅徒歩10分

都営大江戸線「春日」駅徒歩12分

価格
19,990万円
間取り
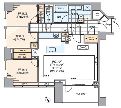
3LDK
向き
-
所在地
東京都文京区春日2丁目3-1
交通

都営大江戸線飯田橋」駅 徒歩9分

丸ノ内線後楽園」駅 徒歩10分

都営大江戸線春日」駅 徒歩12分

専有面積
92.83㎡
築年月
2004年8月(築21年)

オープンルーム

日時 2025年11月11日 ~  10:00 ~ 19:00
  • ※事前に必ずお問い合わせください
  • □■□■□■□■□■□■□■□■□
    毎週末オープンルーム開催中!
    (平日・時間外のご案内も可能)
    □■□■□■□■□■□■□■□■□

    ※1日で複数の物件のご見学も可能です。
    ご予約時に「こんな物件ないですか?」など
    リクエストを頂ければ、併せて物件資料を
    お持ちいたします。
    「未公開物件」「新着物件」などもご紹介可能です。

    ◇◆ご見学予約にあたり◆◇ (お待ち合わせなど)
    (1)ご来店  (2)ご自宅まで迎車
    (3)ご希望場所にてお待合わせ
    その他ご要望などあれば、何でもお気軽にご相談ください。

    ◇◆住宅ローンのご相談◆◇
    「住宅ローン」・「資金計画」はお客様にとって一番重要な部分です。
    不動産会社によって申し込む銀行の優遇幅が違います。
    当社は多数の銀行様にて優遇幅の大きい提携金利で
    申し込むことが可能です。
    「以前住宅ローンを断られた」・「既に他のローンを借りている」
    などお悩みの方もまずはお気軽にご相談ください。

    □■お住み替えキャンペーンも同時開催中■□

    ~ご自宅を売却し購入をお考えのお客様~
    弊社直接買取や仲介でのご売却などお客様に合ったご提案をさせていただきます。

    物件買取サービス(買換え時売却サービス)
    お住替えによるお住まいの売却時や至急お持ちの不動産を現金化されたい場合に、
    弊社が買主となり直接お住まいを買い取るサービスです。

    ☆相続・資産売却も可☆
    □その他注意事項□
    物件の状態によっては、買い取りできない場合もございますので予めご了承ください。

    ご見学・物件資料のご請求はお気軽にご連絡ください。
    ↓ ↓ ↓
    ※メールの場合は【資料請求】ボタンをクリックしてください。
    ※お電話の場合はTEL:03-6457-1157

物件の特徴

  • バストイレ別

  • 独立洗面台

  • 浴室乾燥機

  • オートロック

  • エレベーター

セールスポイント

◇◆内装新規フルリノベーションマンション◆◇
飯田橋×後楽園エリアの閑静な高台に佇む92㎡超3LDK
□当日の内覧もご対応致します!□弊社提携ローンご提案可能です。

担当者のコメント

梶山 晃陽

歴史と静寂が調和するアドレス春日安藤坂に佇むプレミアムレジデンス。
レーベンコミュニティによるホテルライクなマネジメント体制のもと、エントランスから共用部まで一貫したクオリティが感じられる邸宅です。
専有面積92.83㎡・3LDK+WIC+SIC、約22.2帖のリビングが描くゆとりの空間。
プライベートポーチが生むエントランスの独立性、2ボウル洗面台や充実したストレージが日常をよりエレガントに演出します。
システムキッチン(食洗機付)、LIXIL製ユニットバス(浴室乾燥機付)、洗面・トイレ・建具・フローリングなどを刷新し、給水・給湯管の交換、床暖房マットの新設、照明プランやエアコン設置までトータルにアップデート。
タイムレスモダンな美しさと機能性を融合させた空間へと生まれ変わりました。
立地は「飯田橋」駅徒歩9分、「後楽園」駅徒歩10分。
都心のアーバンアクセスと安藤坂の穏やかな住環境を両立し、街の静けさとモダンデザインが共鳴する唯一無二のロケーション。
ペット飼育(2匹まで可/規約有)、駐輪場有。
文京のクラシカルな気品と現代的ラグジュアリーが融合した空間をぜひ現地で感じてみてください。
ご来場お待ちしております。

基本情報

管理費
12,900円
修繕積立金
18,470円
修繕積立基金
-
間取り / 詳細
3LDK
向き
-
専有面積
92.83㎡
バルコニー面積
9.70㎡
その他面積
-
-
-
所在階 / 階建て
4階 / 10階建 地下1階
建物構造
鉄骨鉄筋コンクリート
築年月
2004年8月(築21年)
種別
中古マンション
土地権利
所有権
土地
(敷金 / 保証金)
- / -
国土法届出要否
不要
接道状況
-
用途地域
第一種住居
地勢
-
都市計画
-
現況
空家
引渡し
即時
取引態様
仲介
棟総戸数
105戸
管理形態
管理会社に全部委託
管理会社 /
管理組合有無
レーベンコミュニティ / 有
その他条件
インターネット料月:1,100円
取引条件の
有効期限
2025年12月18日

設備条件

設備条件
  • ペット相談 / 陽当り良好 / リフォーム済 / リノベーション済 / オープンルーム / フローリング / バルコニー / 都市ガス / 公営水道 / 公共下水 / エレベーター / 駐輪場 / アルコーブ / ガスコンロ / コンロ2口以上 / 食器洗い乾燥機 / システムキッチン / コンロ3口 / バス・トイレ別 / 追焚機能浴室 / 浴室乾燥機 / 洗面台 / 独立洗面台 / エアコン / ウォークインクロゼット / ウォークインシューズクロゼット / 収納豊富 / オートロック / 宅配ボックス / 防犯カメラ / 住戸内覧可能 / 角部屋
設備(その他)
    -

その他

物件番号
98954784
管理コード
-
建築確認番号
-
情報更新日
2025年12月04日
次回更新予定日
2025年12月18日
取扱会社
  • リアライズホーム株式会社
  • 東京都中央区日本橋久松町9番8号 Biz Feel 東日本橋 6階
  • TEL:0120-825-928
  • 東京都知事 (1) 第106857号
備考
▼▽物件おすすめポイント▽▼
・プロパスト旧分譲×ナカノコーポレーション施工によるプレミアムレジデンス
・レーベンコミュニティ管理のホテルライクなマネジメント体制
・専有面積92㎡超、22帖超のLDKが描くラグジュアリーな空間デザイン
・WIC+SIC+2ボウル洗面台など、機能と美を融合したプランニング
・2025年8月リノベーション完了済み
・飯田橋・後楽園の2駅利用可、都心と静穏を併せ持つ好ロケーション
・ペット2匹まで飼育可(規約有)

周辺施設

  • まいばすけっと 春日店の画像

    スーパー

    まいばすけっと 春日店

    121m(2分)

  • セブンイレブン 文京春日1丁目店の画像

    コンビニエンスストア

    セブンイレブン 文京春日1丁目店

    180m(3分)

  • 文京区立第三中学校の画像

    中学校

    文京区立第三中学校

    275m(4分)

  • 文京区立礫川小学校の画像

    小学校

    文京区立礫川小学校

    561m(8分)

支払いシミュレーション

月々の支払額
9.6
購入希望物件価格
万円
頭金
万円
金利
%
返済額(ボーナス1回分)
万円
返済期間

※ボーナスは自動で年2回分で計算されます。

近隣の物件

  1. グランドメゾン白山

    文京区白山4丁目

    2LDK (54.20㎡)

    6,998万円

  2. 湯島ハイタウンA棟

    文京区湯島4丁目

    3LDK (77.54㎡)

    7,399万円

  3. 駒込台ハイツ

    文京区本駒込5丁目

    2SLDK (74.29㎡)

    6,980万円

  4. ランドステージ文京千石

    文京区千石2丁目

    2LDK (58.36㎡)

    1490万円

レジデンシア春日安藤坂

レジデンシア春日安藤坂

19,990万円

12,900円

3LDK(92.83㎡)

お気軽にお問い合わせください

LINEからお問い合わせ 無料お問い合わせ

リアライズホーム株式会社

0120-825-928

10:00~19:00

(休:火曜日・水曜日)